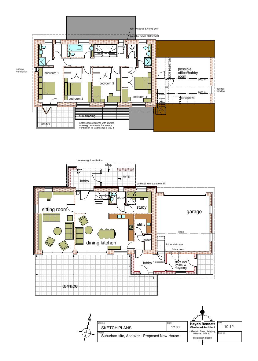
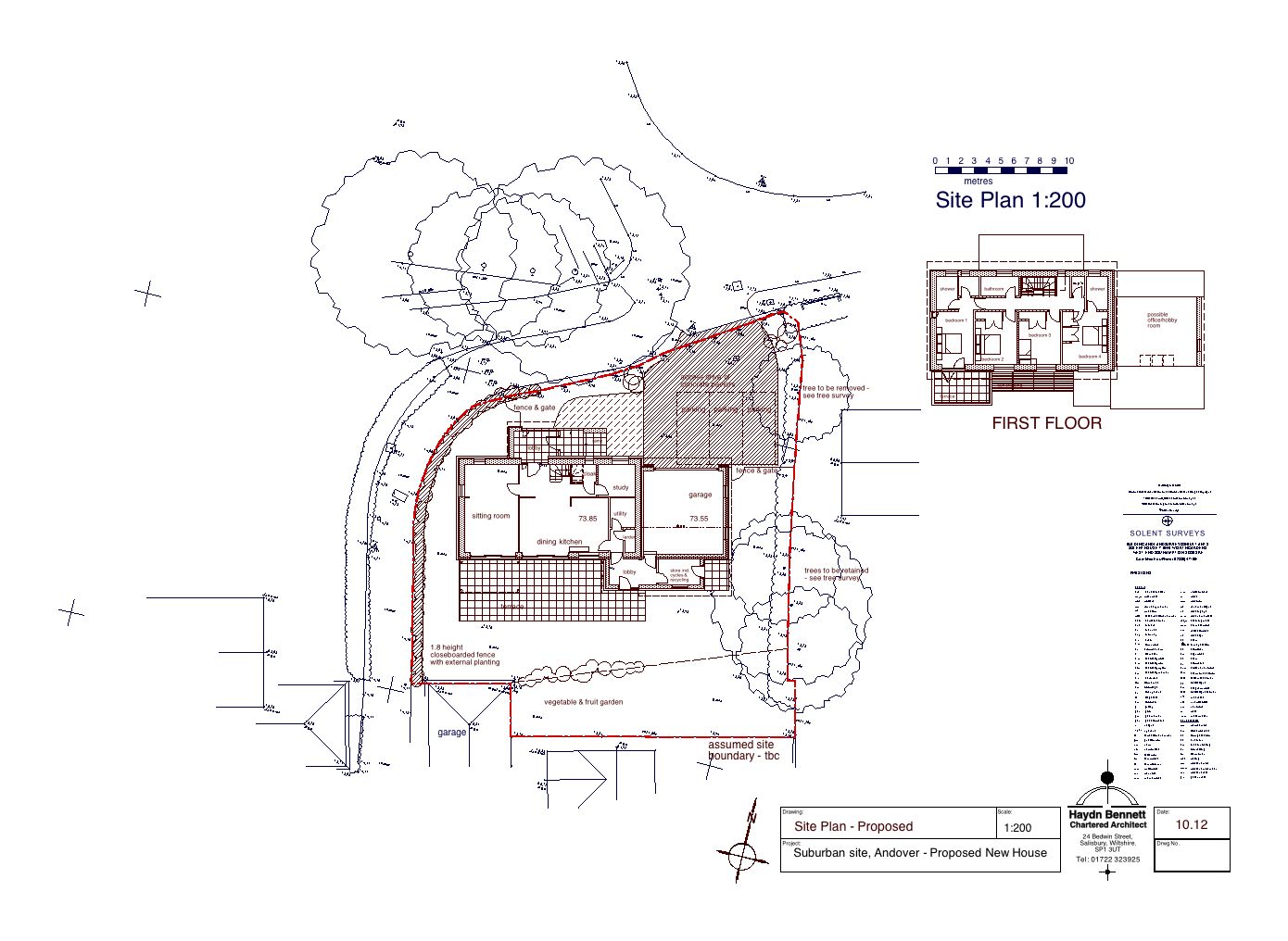
New four bedroom detached house on an infill site in Andover
The site allows for the main garden elevation to face almost due south providing the opportunity to design using a passive solar approach with all the major rooms facing south. The windows to the north are kept small to reduce the heat loss and are mainly to the service rooms. The main accommodation is contained within a simple rectangle which simplifies the formation of a very well insulated and airtight shell ideal for a very low energy building. The garage and the room above are insulated and airtight to a lower standard with the option of further upgrading later if required. Solar shading is included to reduce the potential overheating through the larger windows which are sized for winter and inter-seasonal solar gain and good daylighting levels.
The house design has been modelled in the Passivhaus Planning Package software and has achieved compliance with the Passivhaus design standards.
The materials have been selected to relate to the surrounding area of older houses which provide a good variety of appearance rather than the more recent estate houses as the house continues the more established streetscape. Brickwork, lime-based render and timber boarding feature to the walls.
The finishes, including the brickwork, are considered as veneers allowing the insulated shell to be continuous beneath.
The house had received planning permission. The clients decided that they required the surety of a “turnkey” construction and selected a company to supply this. Unfortunately, the system selected has some potential issues which the practice could not accept and has withdrawn from the project.





